8-800-300-28-65
+7(918)185-28-65
Адрес электронной почты защищен от спам-ботов. Для просмотра адреса в вашем браузере должен быть включен Javascript.

г. Краснодар, ул. им. В.Н. Мачуги, 7/2, офис 2 маткапиталматкапитал

8-800-300-28-65
Адрес электронной почты защищен от спам-ботов. Для просмотра адреса в вашем браузере должен быть включен Javascript.

Проект дома № 23

КОМПЛЕКТАЦИИ И ЦЕНЫ

  • ЦЕНА КОМПЛЕКТАЦИИ СТАНДАРТ

    15 495 000 ₽
    В данную стоимость входит: устройство монолитного железобетонного ленточного фундамента с монолитной плитой, ввод коммуникаций (водоснабжение, канализация), устройство внешних стен и внутренних перегородок из газобетонных блоков, монолитное железобетонное перекрытие, устройство кровли, водосточная система.

Подробную консультацию по вопросам строительства домов вы можете получить у наших менеджеров, нажав на кнопку ниже.

Связаться с менеджером

Описание проекта

Большой и просторный трехэтажный дом с эксплуатируемой плоской кровлей с террасами на каждом этаже. В доме имеются гараж, кухня, гостиная, 4 спальни и три просторные террасы 30, 22,8 и 47,4 кв.м. Внешняя отделка дома облицовочный кирпич либо штукатурка и клинкерная плитка.

Характеристики проекта

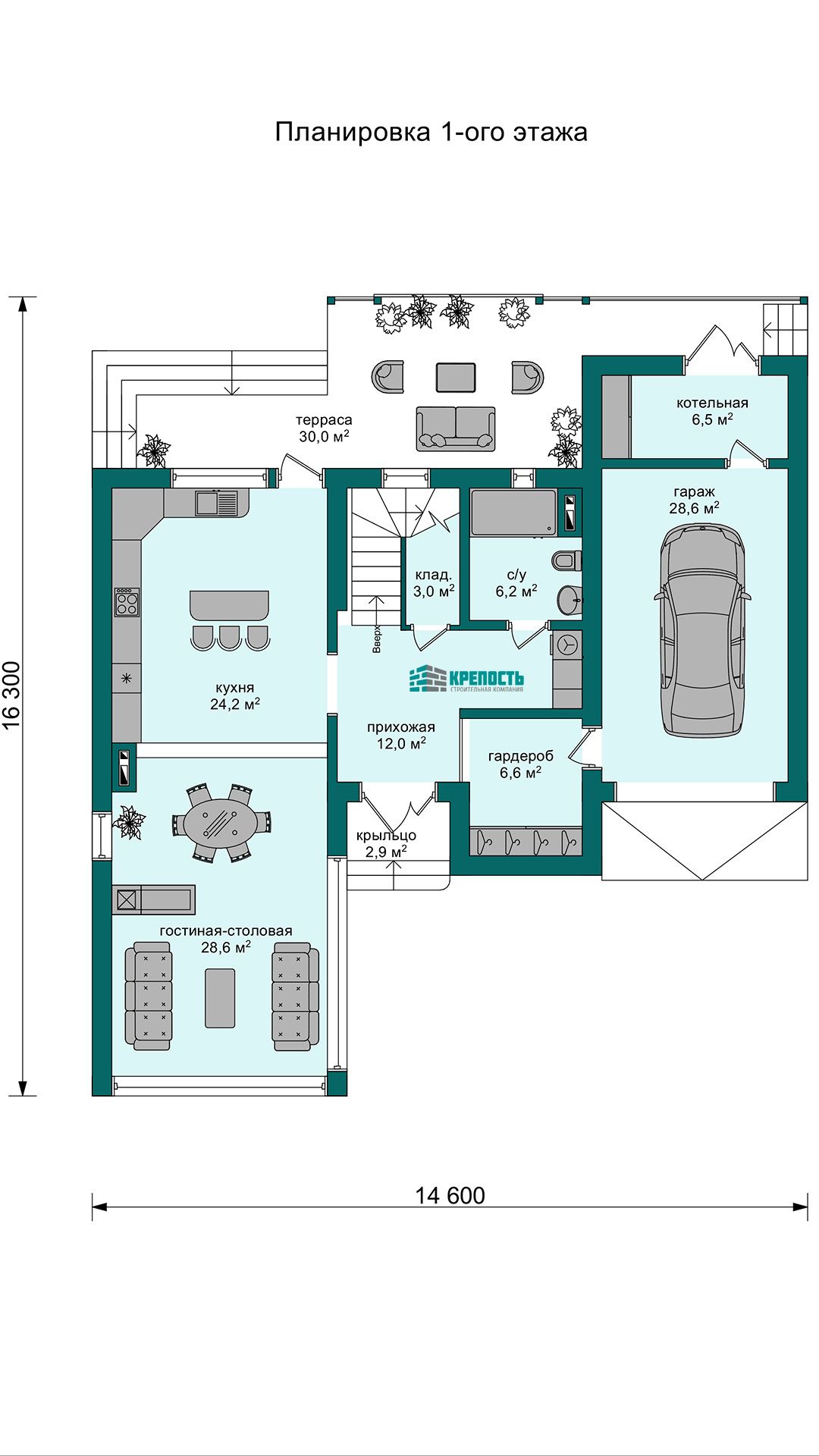
  • Размеры дома: 14,6 х 16,3 м.

  • Площадь строительная: 329,7 кв.м.

  • Площадь общая: 220,5 кв.м.

  • Этаж: 3

  • Высота потолков: 2,8 м.

  • Фундамент: свайно-ростверковый с монолитной ж.б. плитой

  • Материал внешних стен: газоблок
    Фасад: облицовочный кирпич

  • Материал перегородок: газоблок

  • Кровля: металлочерепица

  • Помещения:

    1 этаж:

    • Прихожая: 12 кв.м.
    • Кухня: 24,2 кв.м.
    • Гостиная-столовая: 28,6 кв.м.
    • Кладовая : 3 кв.м.
    • Гардероб: 6,6 кв.м.
    • Санузел: 6,2 кв.м.
    • Техническое помещение: 6,5 кв.м.
    • Гараж: 28,6 кв.м.
    • Крыльцо: 2,9 кв.м.
    • Терраса: 30 кв.м.

    2 этаж:

    • Холл: 11,8 кв.м.
    • Спальня: 13,3 кв.м.
    • Спальня: 18,5 кв.м.
    • Спальня: 11,6 кв.м.
    • Спальня: 12,4 кв.м.
    • Гардероб: 6,2 кв.м.
    • Санузел: 6,8 кв.м.
    • Санузел: 6,2 кв.м.
    • Лоджия: 6,7 кв.м.
    • Терраса: 22,8 кв.м.

    3 этаж:

    • Холл: 6 кв.м.
    • Кабинет: 11,5 кв.м.
    • Кабинет: 17,1 кв.м.
    • Терраса: 47,4 кв.м.

Строительная компания "КРЕПОСТЬ"


г. Краснодар, ул. им. В.Н. Мачуги, 7/2, офис 2

ОГРН 1212300005301   ИНН 2312298178   КПП 231201001

отдел продаж:
8-800-300-28-65
+7 (918) 185-28-65
Адрес электронной почты защищен от спам-ботов. Для просмотра адреса в вашем браузере должен быть включен Javascript.